Full Planning Permission in Stockwell, South London

Clapham Road, Stockwell

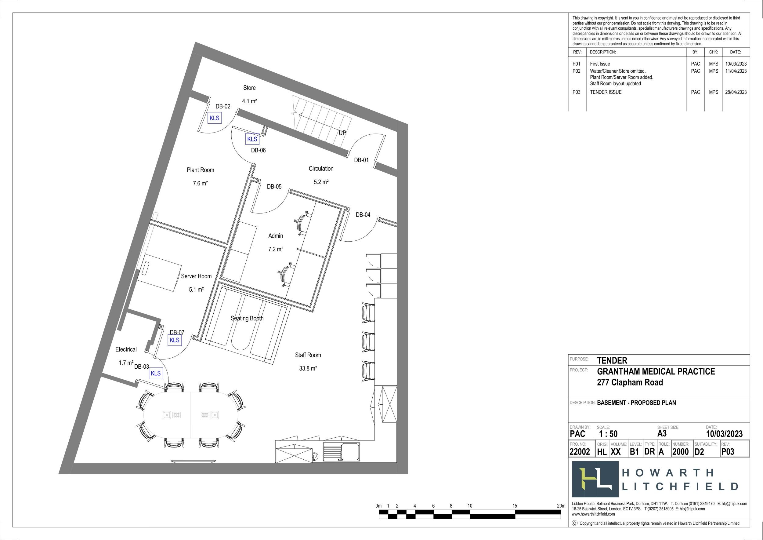
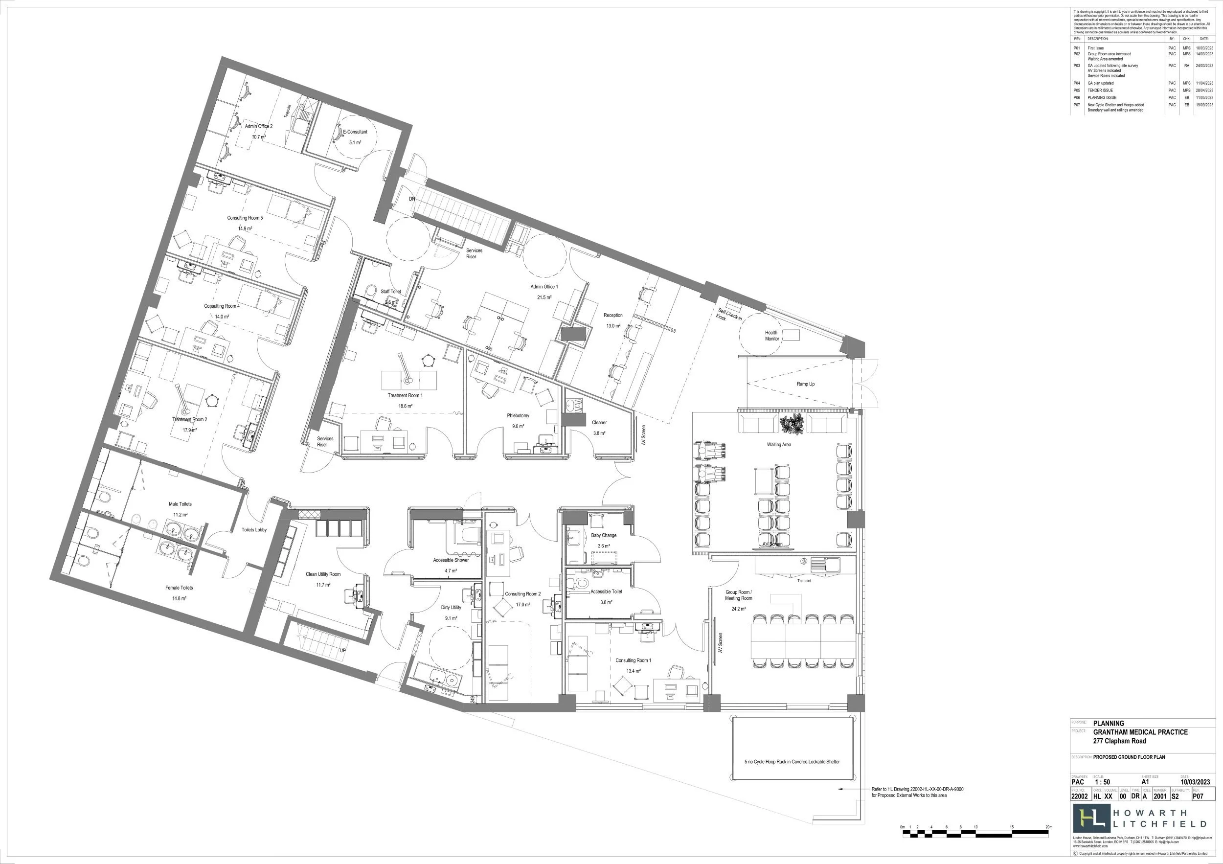
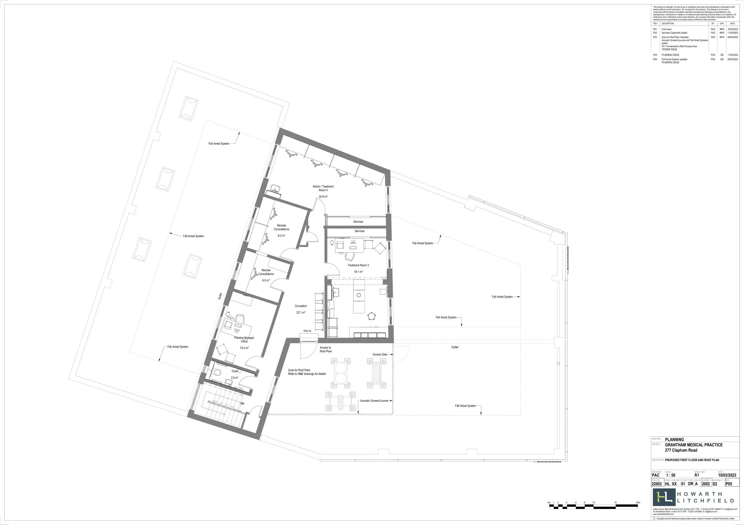
Full planning permission secured from Lambeth Council for the proposed change of use of this Sui Generis Use Class commercial unit to allow it to be used as a Medical Practice (Use Class E(e)).

These premises were for many years used as offices by a housing association but became surplus to requirement. There was therefore a need to find an alternative use. A tenant was found but given the unique nature of the lawful (Sui Generis) use of the premises, planning permission was required.   

Since planning permission was granted for the change of use, these premises have undergone an extensive scheme of refurbishment and are now occupied by a medical (GP) practice.


Expert Planning Across London and the South East

This project highlights our success with Lambeth Council. Moore Planning provides strategic advice for commercial and residential developments across the South East. As established London planning consultants, we combine local insight with a broad reach to deliver results in complex urban environments.

Previous
Previous

Retrospective Planning Permission in Cousley Wood, Kent

Next
Next

Planning Appraisal for Commercial Re-development in Crawley, West Sussex