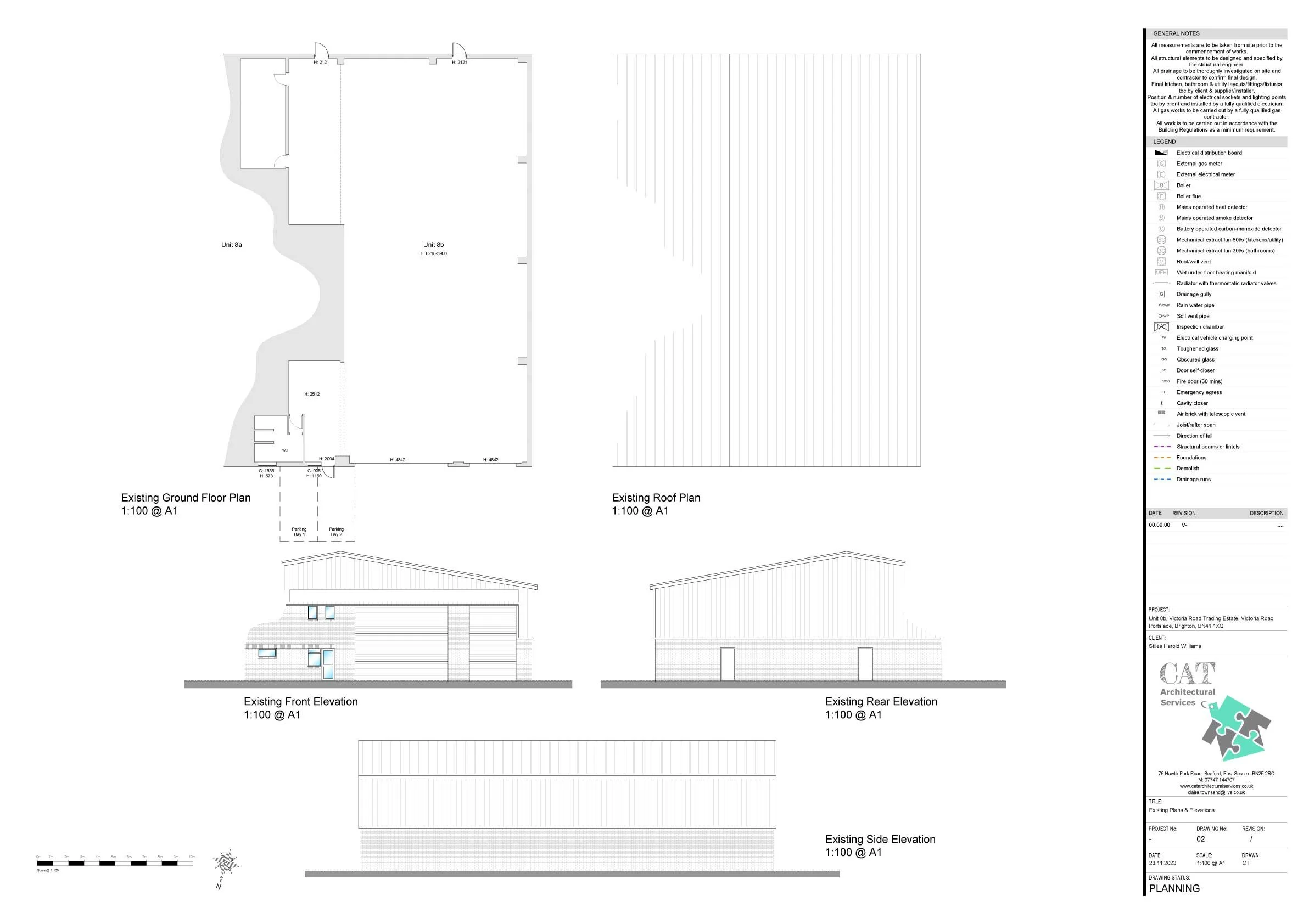
Commercial Planning Permission in Portslade, West Sussex

Full planning permission secured from Brighton & Hove City Council for the proposed flexible use of this industrial unit to allow it to be used either for Use Class B8 (storage and distribution) or Use Class E g) iii) (any industrial process which can be carried out in a residential area) purposes.

The need for this application came as the Landlord was undertaking refurbishment works with a view to finding a new tenant. Due to no party being completely clear on the lawful use of the premises, it was decided that the best way to proceed was to apply for a flexible planning permission.

The planning permission allows the landlord to market the premises for the aforementioned range of commercial uses - which will be interchangeable without the need for any further applications.


Commercial expertise from your Sussex planning consultants.

Previous
Previous

Prior Approval Permitted Development, Wallington, Sutton

Next
Next

Planning Application Opposition, Margate, Kent