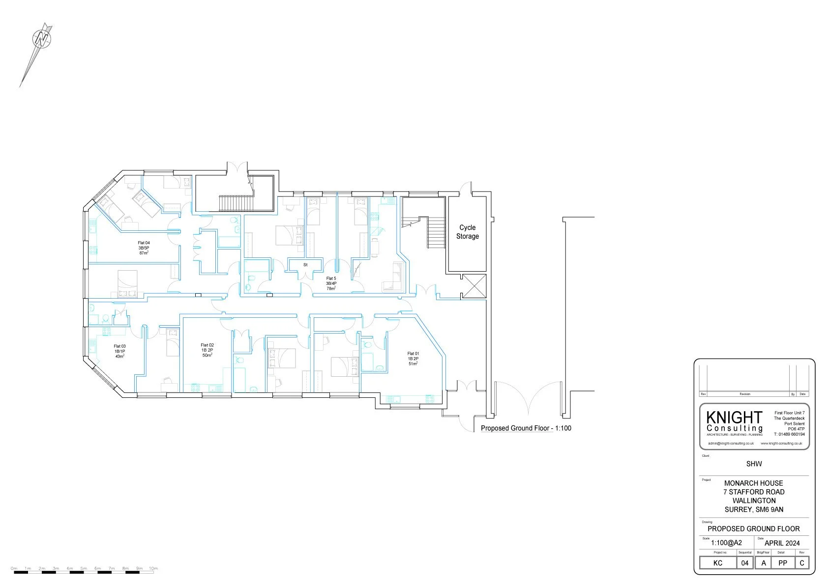
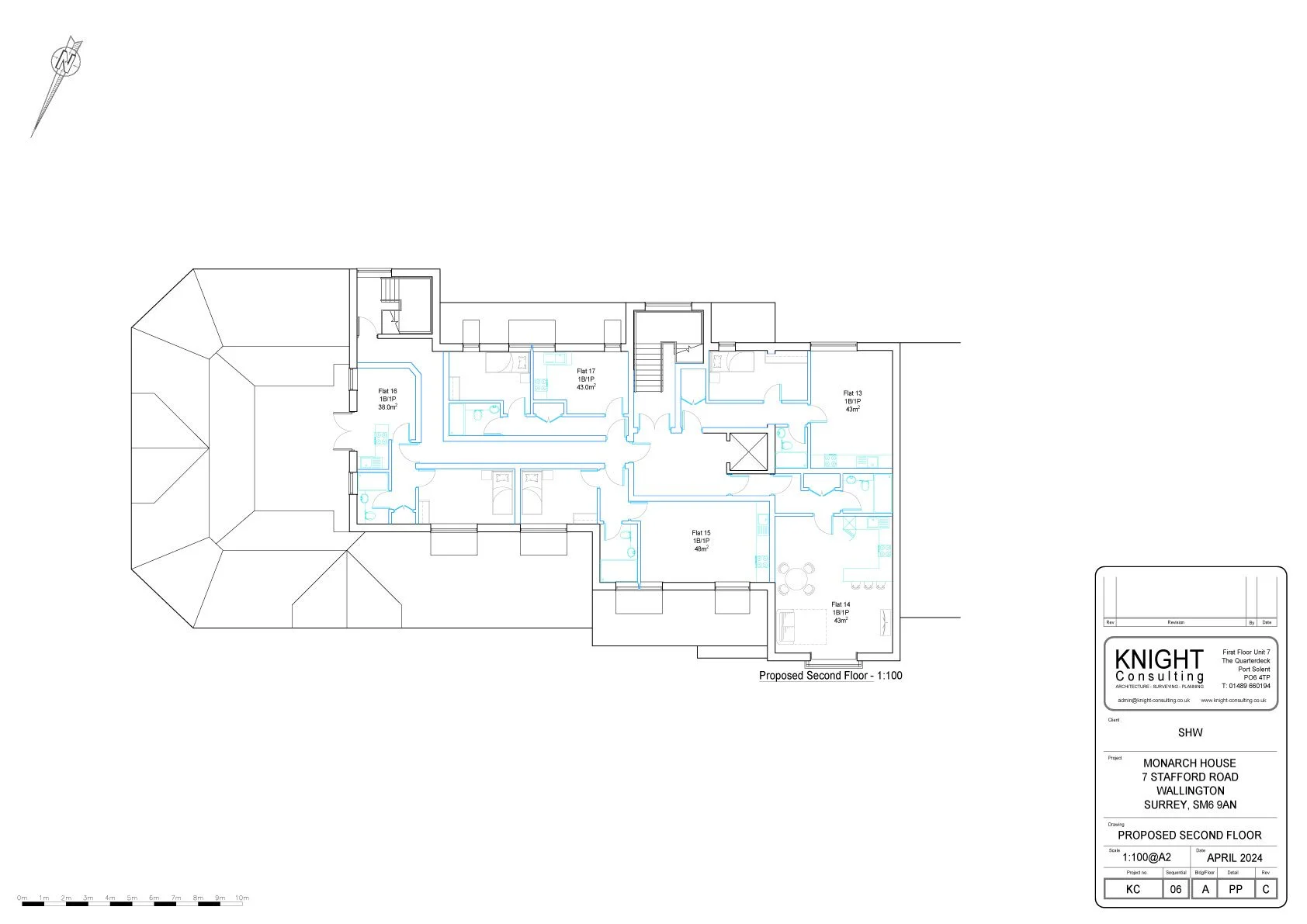
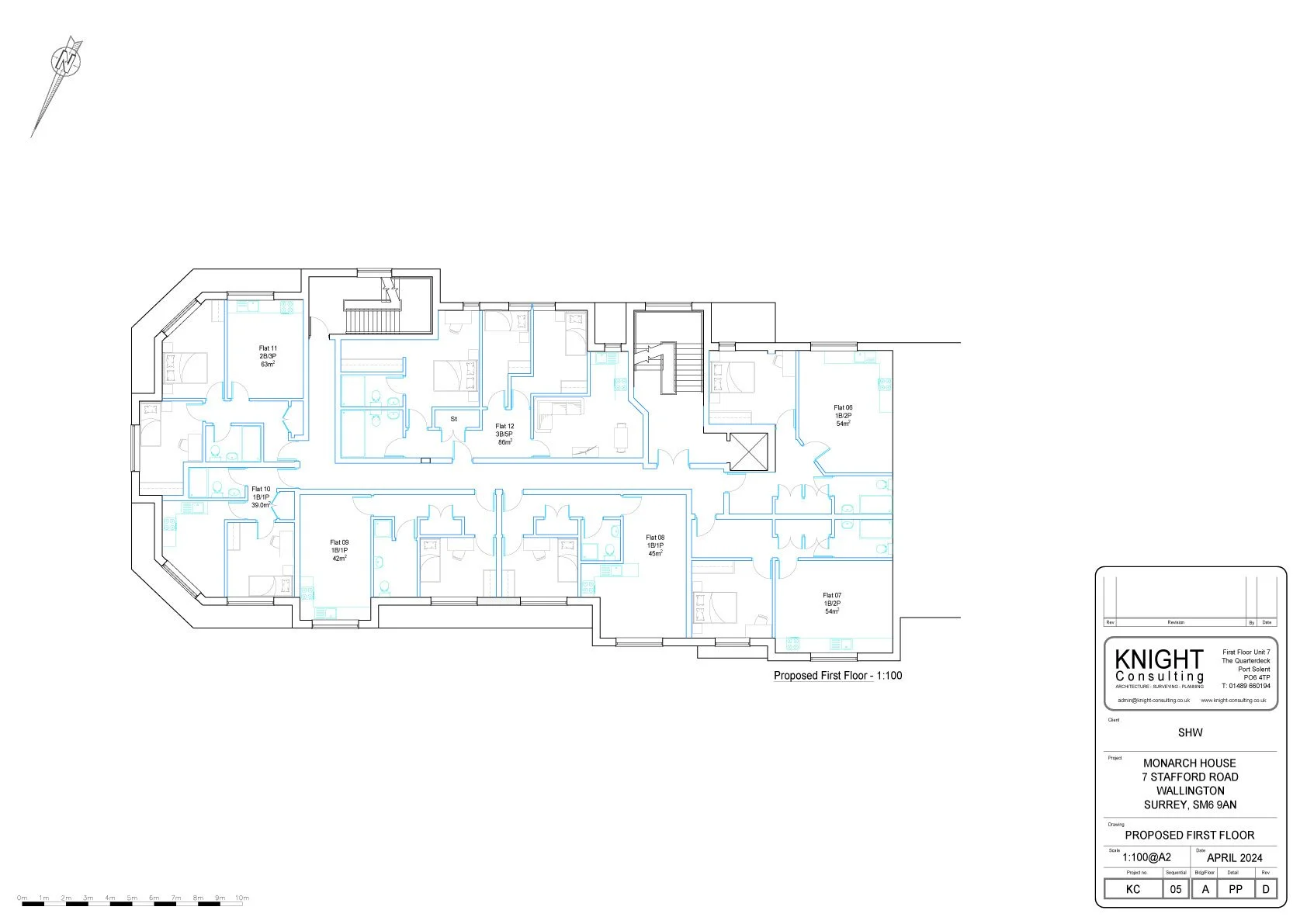
Monarch House, Wallington

Following failed attempt by others, we secured prior approval (utilising Class MA Permitted Development Rights) for the proposed conversion of these sustainably located office premises to provide 17no. self-contained dwellings comprising 13no. 1-bed, 2no. 2-bed and 2no. 3-bed units.

Future occupiers of the development will not only benefit from on-site car and cycle parking facilities but will also find themselves in easy walking distance of various public transport modes and similarly have excellent access to a particularly wide range of shops and services in the surrounding area. This scheme represents a fantastic re-use of an existing building and epitomises sustainable planning.

Previous
Previous

Burdyke Lodge, Seaford

Next
Next

Victoria Road Trading Estate, Portslade